来源:新能源并网
时间:2023-05-18 09:41:03
浏览量:Loading...
1、电力35kV开关柜基础知识

(1)35kV高压开关柜定义:35kV高压开关柜是指额定电压等级为35kV。在电力系统发电、输电、配电、电能转换和消耗中启通断、控制或保护等作用的成套配电装置。
(2)35kV高压开关柜设备:35kV高压开关柜内部含有高压断路器、高压隔离开关(手车) 和接地开关、避雷器、电流互感器、零序互感器、高压操作机构、检测仪表、电缆以及母线等电气设备。
2、电力35kV高压开关柜手车基础知识

手车是35kV高压开关柜的重要组成不同,手车类型不同,起到的作用也不同。通常手车类型有断路器手车、电压互感器手车、隔离手车、避雷器手车、避雷器+隔离手车、熔断器手车等6种。
广义上来说,35kV开关柜由固定的柜体和可移动部分(简称手车)两大部分组成。开关柜可实现架空进出、电缆进出、母联、站用变等多种功能。
手车在35kV高压开关柜内有三种位置:工作位置、试验位置和检修位置。一般情况下,手车在柜内的位置既能从柜体面板上位置指示器,也可以从观察窗内看到。断路器的位置则可以顺利获得手车面板上的分合闸指示器观察到手车底盘上一般装有丝杠螺母推进机构和各种机械连锁机构。开关柜上的二次线与手车的二次线顺利获得航空插头连接。只有在试验和检修位置时,才能插拔航空插头。
3、电力35kV开关柜基本结构

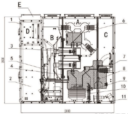
35kV开关柜设有四个独立的小室,分别为母线室、断路器室、电缆室和继电保护仪表室。除继电保护仪表室外,其他三个小室均设有泄压通道,当发生内部故障时,伴随电弧的出现,开关柜内气压逐渐升高,顶部装设的压力释放金属板会自动打开,释放压力和排出高温气体,确保操作和人员安全。
如图所示,A为母线室,B为断路器室,C为电缆室,D为仪表室,E为顶部控制母线室。

35kV开关柜的母线室主要用于安装主母线和分支母线。主母线贯穿了一条母线上连接的所有开关柜,并顺利获得热缩套管和隔板隔开,有效防止事故蔓延。主母线一般呈水平方向“品字排列,有利于节约空间。相邻柜母线一般采用装有均压环的套管固定。

电缆室内留有充足的空间装有电流互感器、电压互感器、避雷器、接地开关、零序电流互感器等电气设备。其中电流互感器一般位于电缆室的后壁上,接地开关安装在电缆室的前面方便电缆接线。
4、电力35kV开关柜的连锁
(1)35kV开关柜五防连锁的概念:为了防止现场操作人员无意识地实施错误的操作,从而导致事故,在开关柜的设计中加入强制联锁装置或采取提示性的措施,包括电气联锁和机械联锁。
(2)35kV开关柜五防连锁的含义:1.防止误合、误分断路器;2.防带负荷拉合隔离开关或手车出头;3.防带电挂接地线;4.防带地线或地刀合隔离刀闸5.防误入带电间隔。
(3)断路器小车位置与断路器的联锁:只有当断路器处于分位时,断路器小车才能移动(防止带负荷拉、合隔离开关或手车触头);只有当断路器小车处于“工作位置”时,断路器才能合上。
(4)接地开关与开关柜后柜门的联锁:当接地开关合闸时,电缆室的门才允许被打开,且只有关闭电缆室的门后,接地开关才允许被分闸(防止误入带电间隔)。
(5)断路器小车位置与接地刀闸的联锁:只有当断路器小车处于“试验位置”时,接地刀闸才能合闸(防止带电合地刀);当接地刀闸处于合闸位置时,断路器小车无法向“工作位置”推进(防止带地刀合闸)。
(6)断路器小车与二次插头的联锁:只有当手车在试验位置或检修位置时,二次插头才能被拔下来;当手车在“工作位置”时,二次插头被锁定,不能被拔下。
5、电力35kV开关柜5G无线并网解决方案

电力35kV开关柜传统并网方式,采用有线光纤并网,并网成本高、施工复杂、建设周期长。qy千亿球友智能通信公司研发的新款二合一设备,5G纵向加密融合通信网关,可以顺利获得电力5G切片专网进行无线方式并网,向下对接35kV开关柜的场站远动装置进行数据对接,对上直接进入电力安全专区,将场站数据接入调度监控主站D5000系统,实现低成本并网。
5G纵向加密融合通信网关内置电力5G通信模组,满足电力调度部门要求的5G电力切片网络通信要求,同时具备国网纵向加密芯片,可以直接与电力调度主站的纵向加密设备进行对接,满足电力部门的并网要求。
5G纵向加密融合通信网关使用简单,无需敷设光纤,采用5G无线方式进行电力并网降低了项目建设成本、节约了项目建设工期,同时多功能合一设备,后期维护成本低,是当前电力35kV开关柜5G无线并网的最优解。
免责声明
访问者可将本网站提供的 电力35kV开关柜5G无线并网-解决方案 内容或服务用于个人学习、研究或欣赏,以及其他非商业性或非盈利性用途,但同时应遵守著作权法及其他相关法律的规定,不得侵犯本网站及相关权利人的合法权利。除此以外,将本网站任何内容或服务用于其他用途时,须征得本网站及相关权利人的书面许可,部分素材来源于网络,如有侵权请联系删除。
Copyright 2021山东qy千亿球友智能通信科技有限公司版权所有 鲁ICP备20020223号-4技术支持 云优网络
0531-59723816

13864080101